Xây dựng nhà phố là một hành trình đầy thử thách nhưng có ý nghĩa to lớn đối với chủ đầu tư và công ty xây nhà trọn gói. Từ việc phát triển ý tưởng, khảo sát đất, thiết kế kiến trúc & kết cấu, xây nhà phần thô đến hoàn thiện nhà ở, mỗi bước đều đòi hỏi sự chuẩn bị kỹ lưỡng, phối hợp chặt chẽ giữa chủ nhà, kiến trúc sư, kỹ sư kết cấu và nhà thầu xây dựng. Khi làm tốt các giai đoạn này, bạn sẽ sở hữu một ngôi nhà không chỉ thẩm mỹ mà còn bền vững, tiện nghi, và xứng đáng với công sức mình bỏ ra.
|
THÔNG TIN DỰ ÁN |
|
| Chủ đầu tư: | Chị Nghi |
| Vị trí công trình: | Phường Bình Thạnh – TP. HCM |
| Quy mô công trình: | Nhà phố 1 trệt 2 lầu |
| Diện tích đất: | 5x12m |
| Dịch vụ: | Xây nhà trọn gói |
| Thời gian thi công: | 90 ngày |
| Mẫu nhà: | Nhà phố hiện đại |
| Đơn vị thiết kế và thi công: | Việt Nhật Group |
| Giám đốc dự án: | Anh. Lê Công Đức |
Kế hoạch xây dựng nhà 3 tầng 5x12m
Mỗi dự án nhà phố đều bắt đầu từ một mong muốn hoặc nhu cầu thực tế của chủ đầu tư, xây nhà ở, vừa ở vừa kinh doanh, mở rộng thêm phòng công năng, làm sân thượng,… Giai đoạn này rất quan trọng, vì quyết định sơ bộ về công năng và phong cách sẽ ảnh hưởng sâu tới toàn bộ quá trình thiết kế và chi phí xây dựng.
KTS Việt Nhật Group chuyển hóa ý tưởng của chủ nhà thành bản vẽ sơ bộ, phối cảnh mặt tiền, mô hình 3D sơ bộ, định vị công năng phòng ốc. Tinh chỉnh phong cách kiến trúc, vật liệu ngoại thất, giật cấp, lan can, cửa sổ, ban công. Xem xét thẩm mỹ và công năng, làm sao tận dụng ánh sáng, không gian lấy gió, bố trí hợp lý các phòng chức năng.

Mẫu nhà xây dựng nhà phố 3 tầng 5x12m
Cách bố trí công năng tầng trệt
Đối với mảnh đất xây dựng không được vuông vức, KTS Việt Nhật Group bố trí công năng thông minh, giúp tối ưu diện tích xây dựng và công năng sử dụng ngôi nhà. Xây dựng nhà phố 3 tầng 5x12m, chủ đầu tư mong muốn chừa khoảng sân phía trước nhà để làm khu vực để xe gia đình, thuận tiện nhu cầu sử dụng của các thành viên.
Bước vào khu vực tầng trệt, bạn bắt gặp phòng khách rộng rãi, khang trang, và đầy đủ tiện nghi để đón tiếp khách đến thăm nhà. Phòng bếp bố trí ở khu vực nở hậu phía sau, vừa mang đến vẻ đẹp thẩm mỹ vừa kín đáo hơn khi có khách ghé thăm nhà. Phần diện tích đất có hình thù đặc biệt phía cuối ngôi nhà được bố trí thêm WC và khu vực giặt phơi ngoài trời, vừa tối ưu không gian vừa đáp ứng nhu cầu sử dụng của gia đình.

Cách bố trí công năng tầng trệt
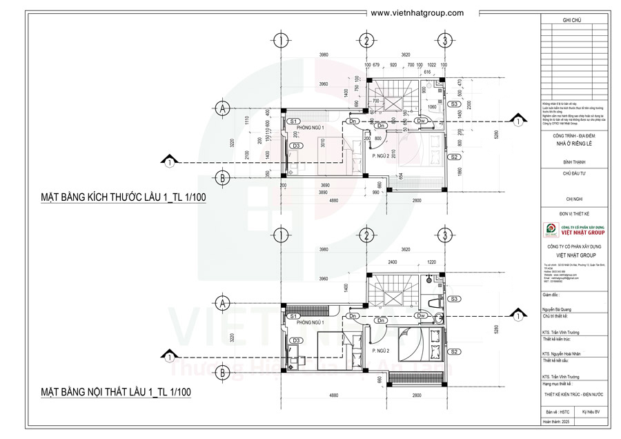
Cách bố trí công năng lầu 1
Mặt bằng lầu 1 bố trí gồm 02 phòng ngủ và 01 WC đáp ứng nhu cầu sử dụng của các thành viên. Thiết kế hệ cửa lớn ở các phòng công năng giúp lưu thông không khí và cung cấp ánh sáng tự nhiên đến các căn phòng, giúp các thành viên cảm thấy thoải mái hơn khi sinh hoạt và nghỉ ngơi.

Cách bố trí công năng lầu 1
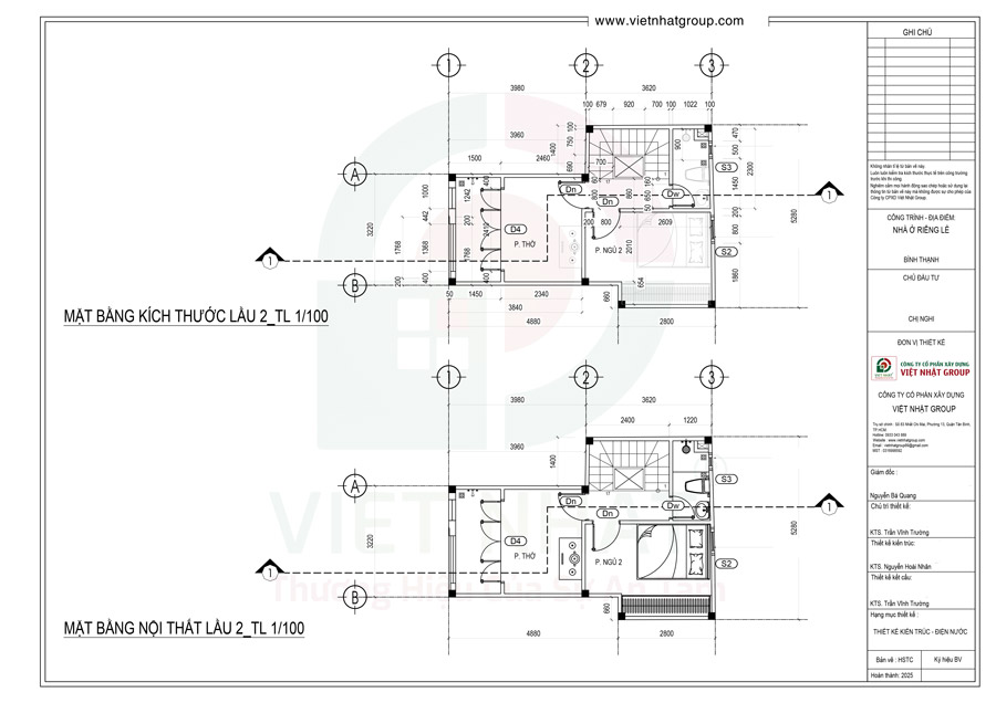
Cách bố trí công năng lầu 2
Lầu 2 bố trí thêm 01 phòng ngủ, 01 WC và phòng thờ, đáp ứng đủ công năng sử dụng cần thiết của gia đình. Thiết kế phòng thờ hướng ra mặt tiền nhà, vừa phù hợp với phong thủy vừa tạo không gian thông thoáng cho các thành viên.

Cách bố trí công năng lầu 2
Quá trình xây nhà phần thô – Nhà phố 3 tầng 5x12m
Sau khi thiết kế hoàn chỉnh, công ty xây nhà trọn gói hoàn thiện hồ sơ xin phép xây dựng theo quy định địa phương – đây là hồ sơ pháp lý bắt buộc khi xây dựng nhà phố tại TP.HCM. Trong quá trình xin phép, có thể cần sửa đổi bản vẽ để phù hợp với quy hoạch, chiều cao tối đa, mật độ xây dựng nhà,…
Thi công xây dựng phần móng nhà
Kỹ sư kết cấu Việt Nhật Group tính toán để chọn loại móng phù hợp dựa trên khảo sát địa chất, công trình xây dựng sử dụng phương án thi công móng cọc để nâng đỡ toàn bộ ngôi nhà, giữ cho công trình ổn định, bền vững theo thời gian.
Thiết kế thép dầm, giằng móng theo tải trọng dự tính (số tầng, công năng, trọng lượng mái,…). Hầm tự hoại sử dụng gạch đinh giúp tăng cường khả năng chịu tải của hố móng, bảo vệ hầm móng chắc chắn, ổn định.

Hình ảnh thi công ép cọc xây nhà

Hình ảnh thi công đào hố móng

Hình ảnh thi công thép lót móng

Hình ảnh thi công đổ bê tông lót móng

Hình ảnh thi công hầm tự hoại

Hình ảnh thi công xây tô hầm tự hoại
Công trình đang thi công. Nếu bạn cần tham quan công trình thực tế, liên hệ ngay đến Việt Nhật Group để được hỗ trợ miễn phí, tận tâm!
Từ khóa: xây nhà trọn gói uy tín | xây dựng nhà trọn gói | sửa nhà trọn gói | báo giá sửa nhà trọn gói | báo giá thi công phần thô | đơn giá xây dựng phần thô và hoàn thiện






























































